Description
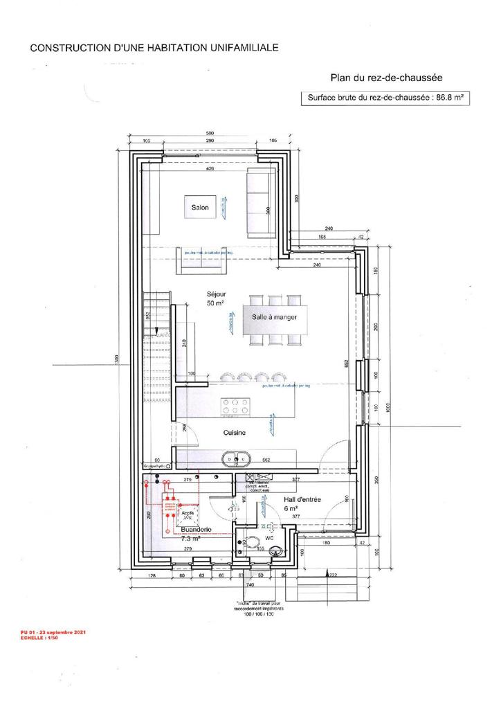
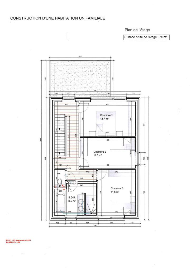
Actesia vous propose de découvrir ce nouveau projet - Au cœur du village de Spy (entre Namur et Gembloux), beau projet prévoyant la construction d’une agréable maison unifamiliale 4 façades (ossature traditionnelle) réalisée par Cosy House Design sur un terrain de 6 ares. Cette maison comprendra 3 chambres et une possibilité d'aménager le grenier (option). Proche de la gare, des arrêts de bus, des commerces et des écoles. Participation aux frais de mesurage, de bornage, de division et de raccordements. Vente sous le régime de la TVA (21%) pour la construction évaluée à 275.000 € et sous les droits d'enregistrement pour le terrain évalué à 90.000 (12,5%). Toute offre est à soumettre à l'approbation du propriétaire. Les plans, mesures et photos sont donnés à titre indicatif et non contractuel. Avec une superficie brute de ± 200 m², elle se compose comme suit : Au rez-de-chaussée : hall d’entrée, wc, buanderie, cuisine ouverte, salle à manger et salon. Au premier étage : hall, 3 chambres, salle de bains avec baignoire et douche. Au deuxième étage : grenier aménageable. Extérieur : terrasse et jardin à aménager selon les goûts, emplacement à l’avant pour deux voitures. Situation idéale : dans le village de Spy qui comporte de nombreuses facilités telles que crèches, écoles maternelles et primaires, supermarché, commerces de proximité, etc. Proche de grands axes autoroutiers. Excellent niveau de confort : envoyez un mail à info@actesia.be pour toute information complémentaire : cahier des charges, offre de prix, …
Adresse :
rue de Temploux - 5190 Spy
Caractéristiques
Général
| Référence | 4937050 |
|---|---|
| Catégorie | Terrain à bâtir (projets) |
| Surface du terrain | 600 m² |
Caractéristiques Principales
| Profondeur terrain | 4417 |
|---|
