Maison - retiré v. - 5060 Sambreville Auvelais

PEB : G
Maison - à vendre - 5060 Sambreville Auvelais
5060 Sambreville Auvelais
145 000 €
Maison - retiré v.
130 m² 3 PEB : G
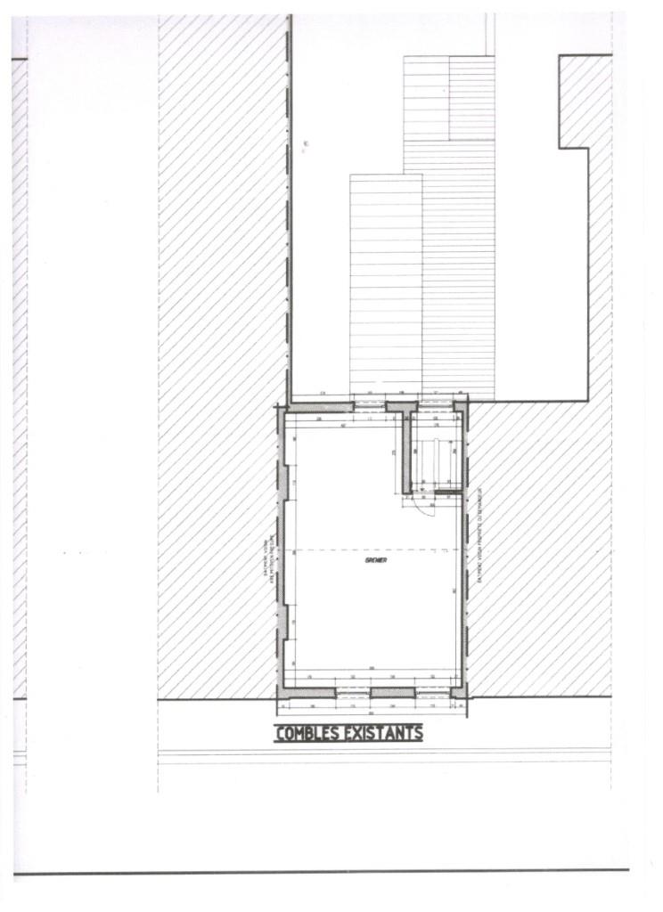
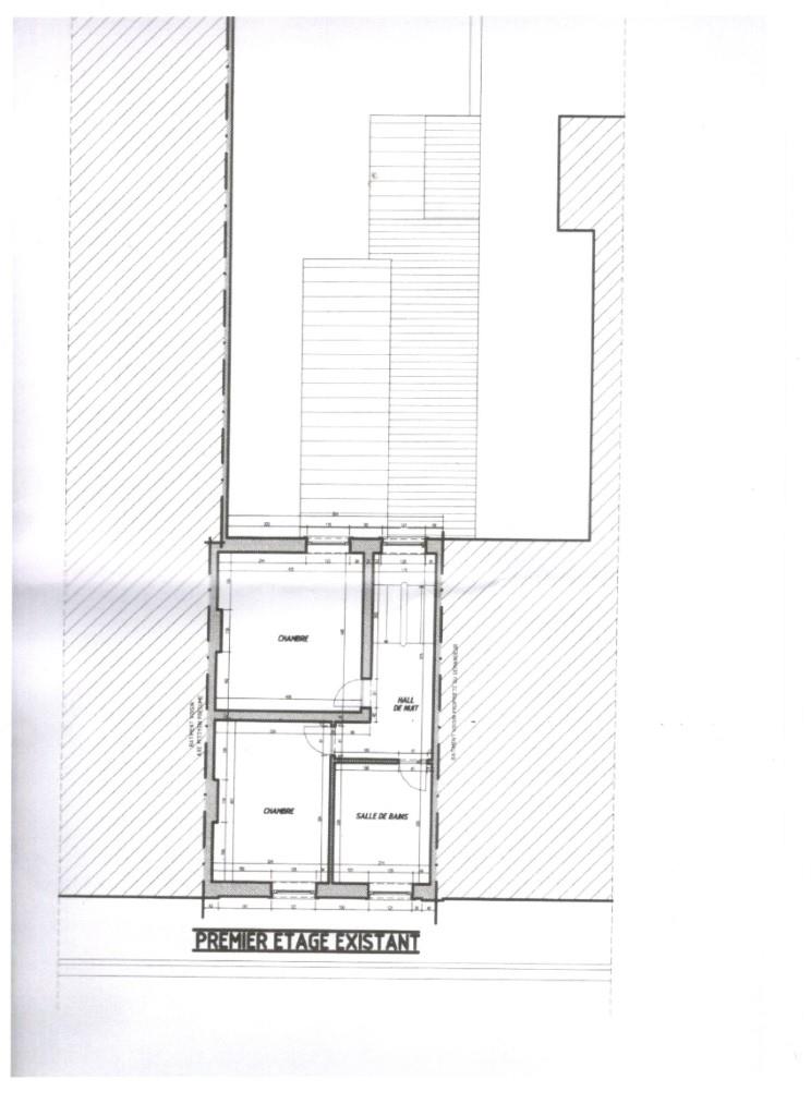
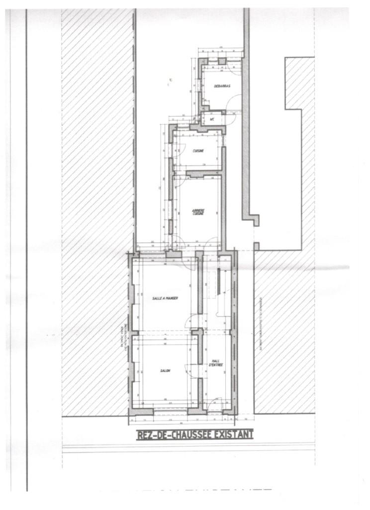
Au cœur d’Auvelais, sympathique maison villageoise à rénover avec beau jardin exposé Sud. Espaces intéressants : surface habitable de 130 m² et surface exploitable de 170 m2 : salon, salle à manger, cuisine, arrière-cuisine, débarras, 3 belles chambres, greniers aménageables de plus de 40 m2 et cave. Bonne situation : à deux pas des commerces de proximité, des écoles, des grands axes de communication, d’une piscine, d’une salle de sport, d’une gare… Possibilités de droits d’enregistrement réduits. PEB : G – 751 kWh²/m².an – 169.671 kWh/an FAIRE OFFRE A PARTIR DE 145.000 € sous réserve de l’accord des propriétaires.

Détails

Général

Référence 2921187
Catégorie Maison
Nombre de chambres 3
Jardin Oui
Surface habitable 130 m²
Surface du terrain 595 m²

Nom, catégorie & situation

Nombre d'étages (numéro) 2

Spécificités terrain

Orientation du bâtiment (-) sud

Bâtiment

Type de toit ardoise

En chiffres

Surface bâtie (-) 130
Nbre de toilette(s) (nombre) 1
Chambre 1 (surface) 18 m²
Chambre 2 (surface) 14 m²
Chambre 3 (surface) 9 m²
Surface nette 130 m²
Salle de séjour (surface) 36 m²
Grenier (surface) 40 m²

Equipement de base

Cuisine Oui
Chauffage (ind/coll) (type (ind/coll)) individuel
Chauffage (Format/energie) mazout (chauf. centr.)
Type de cuisine non-équipée

Divers

Débarras Oui
Cage d'escalier Oui
Téléphone Oui
Grenier Oui
Cave Oui

Equipement extérieur

Piscine Oui

Cadastre

Section (-) F
Numéro (n°) 244W15
Surface (ha/a/ca) (surf. (ha/a/ca)) 595
Revenu cadastral (€) (montant) 733 €

Raccordements

Égouts Oui
Citerne à mazout Oui
Eau Oui

Type de matériau & évaluation

Chambre 1 (revêtement de sol) vinyl
Chambre 2 (revêtement de sol) vinyl
Chambre 3 (revêtement de sol) vinyl
Type de revêtement de sol carrelages

À proximité

Magasins Oui
Ecoles Oui
Transports en commun Oui
Centre-ville Oui
Centre sportif Oui

Certificats / Attestations

Certificat d'électricité (oui/non) oui, non conforme

Energie

PEB E-SPEC (kwh/m²/an) (Consommation énergétique) 751
E total (Kwh/an) 99999
Prendre contact pour le bien : 2921187
* Champs obligatoires

En envoyant ma demande de contact, je déclare accepter que mes données complétées dans ce formulaire soient utilisées pour les buts mentionnés ci-dessus par Laurence Ghigny; et ce, en accord avec la charte de protection de la vie privée du site. Je peux à tout moment retirer mon consentement en introduisant une demande écrite à l’adresse info@actesia.be.

Préférences pour les cookies

La protection de vos données personnelles est importante pour nous. C’est pourquoi nous détaillons ci-dessous les différents services et fonctionnalités du site qui utilisent des cookies et nous vous laissons décider des cookies que vous souhaitez autoriser ou refuser.

Veuillez cependant noter que si vous bloquez certains types de cookies, cela pourrait impacter votre expérience de navigation sur notre site ainsi que les fonctionnalités disponibles.

Nous utilisons des cookies fonctionnels obligatoires pour assurer le bon fonctionnement du site. Ils sont, par exemple, nécessaires pour retrouver le résultat d’une recherche ou enregistrer le choix de la langue.

Certaines fonctionnalités, comme l’affichage de vidéos ou de cartes géographiques, sont assurées via des composants externes développés par des partenaires comme YouTube ou Google. Certains composants utilisent des cookies qui sont susceptibles de permettre à ces tiers de suivre le comportement des internautes afin, par exemple, de réaliser du ciblage publicitaire. L’activation de ces fonctionnalités et des cookies associés est donc soumis à votre consentement.